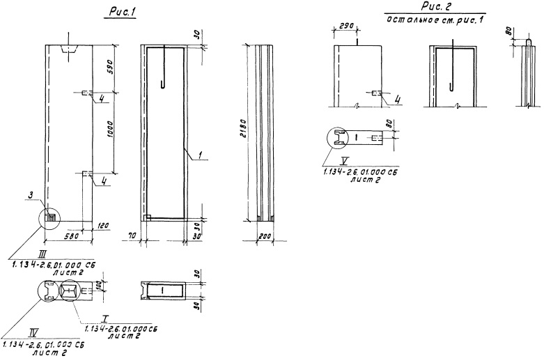
СБ 6.22.2-п

Чертеж изделия:
Чертеж СБ 6.22.2-п
Характеристики изделия:
ПараметрЗначение
Длина580 мм
Ширина200 мм
Высота2180 мм
Масса380 кг
Нормативный документСерия 1.134-2

Блоки внутренних стен из легких бетонов толщиной 16 и 20 см  для жилых зданий высотой 1-4 этажа и общественных зданий высотой 1-3 этажа по Серии 1.134-2.

СБ 6.22.2-п  Стеновой блок.